一、低噪声屋顶风机(DWT系列)屋顶风机特点
低噪声屋顶风机(DWT系列)特点:格型式多,应用范围广:可根据使用场合压力、风量和噪声的不同要求,选用以下型式的风机:
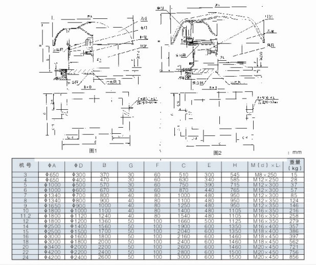
a、轴流式屋顶风机:型号为DWT-Ⅰ型,宜用于中低压、大流量的使用场合。同时根据用户需要还可以设计成双向旋转可逆式,具有正反工况等效的特点;
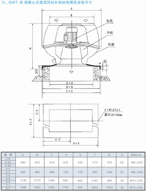
b、离心式屋顶风机:型号为DWT-Ⅱ型、DWT-Ⅲ型二种型式,宜适用于风量较小而压力要求较高的场合。
二、低噪声屋顶风机(DWT系列)屋顶风机用途
DWT系列屋顶风机分为二大类型。其一,轴流式屋顶风机:型号为DWT-Ⅰ型,适用于中低压,大流量的使用场合。其二,离心式屋顶风机:型号为DWT-Ⅱ型、DWT-Ⅲ型耳中型式,宜适用于风量较小而压力要求较高的场合。无电机涡轮排风机:型号为DWT-Ⅳ型,宜用于商用建筑和公司矿企业(轻钢结构屋面)的排风换气。
三、低噪声屋顶风机(DWT系列)使用条件
DWT系列轴流式屋顶风机使用条件:介质温度不超过60摄氏度,气体中不允许含有过量粘性物,含尘量小于100mg/m。对介质温度高的场合,我厂有高温风机技术可提供产品使用。
四、低噪声屋顶风机(DWT系列)性能参数表
.jpg)
.jpg)
DWT-Ⅰ3#-11.2#轴流式屋顶风机外形结构图及安装尺寸(固定角度)图1
DWT-Ⅰ12#-20#轴流式屋顶风机外形结构图及安装尺寸(可变角度)图1
DWT-Ⅰ22#以上皮带传动轴流式屋顶风机外形结构图及安装尺寸(可变角度)图2
.jpg)
DWT-Ⅱ型离心式屋顶风机性能参数表及外形结构安装图
.jpg)
.jpg)
.jpg)
.jpg)